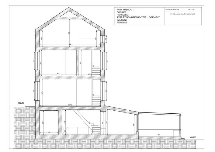
Plans 2D


Sur base de mon mesurage ou du vôtre, j’effectue les plans sur Autocad avec un niveau de détail plus ou moins précis selon vos demandes.

Ce service comprend l’exécution de plans, de niveaux, de coupes, d’élévations et plans de toiture en fonction de l’accessibilité.

Mes plans peuvent contenir plusieurs informations : le nom des pièces, l’emplacement et le sens d’ouverture des portes et des fenêtres, l’orientation, les hauteurs sous plafond, la surface des pièces en mètres carrés, les mesures intérieures des pièces, le dessin du mobilier...

UUne mise en page avec une cartouche contenant des informations administratives peut également apparaitre sur les plans.




En pratique

Qui suis-je ?


Me contacter

+32 (471) 50 49 11
h.dorys@hd-archi.be